top of page
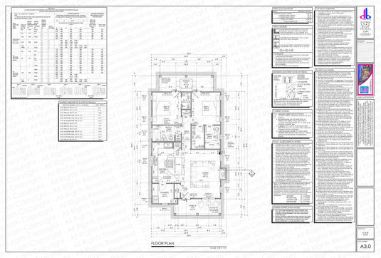
(1069 SF) WOODCROFT
Property Description
1,069 SF (1,290 Total) 2-bed, 2-bath, 1-story, American Rural Craftsman, Narrow Thin-lot, Open-Plan connecting Kitchen / Pantry / Living Room, Utility Room, Covered Entry Porch, Hallway Gala, Covered Rear Porch, size: 28'x52', Lot-Fit: 40'x80'.
bottom of page
















