top of page
(2232 SF) ARISTA
Property Description
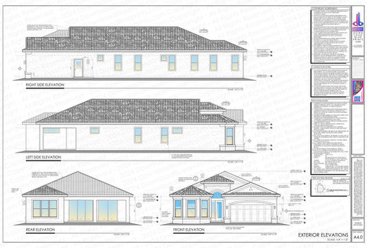
2,232 SF (3,086 SF Total), 4-Bed, 3-Bath, 2-Car, 1-Story, Tropical Adobe Style, Narrow Thin-Lot, CMU Concrete Construction, Open-Split Plan connects Kitchen / Oversized Pantry / Living Room / Dining Room / Wet-Bar, Utility Room, Large Master Suite w/ Bath & Walk-in-Closet, Secondary Bedrooms w/ En-Suite Baths & Walk-in-Closets, Covered Elevated Entry Porch, Hallway Gala, Large Rear Covered Lanai, Size: 40'x84', Lot-Fit: 50'x120'.
Property Details
Property Type
Single Family
Bedrooms
4
Bathrooms
3
Plan Style
Adobe, CMU Concrete Block, Coastal, En-Suite Bath, Gated Community, Golf Course, Monthly House, Monticello, Narrow Thin-Lot, Poolside Pool House, Urban Country
Size
Floors
3086
1
Car Garage
2
Dimension
40' x 84'
Purchase Plan - Choose File Type
bottom of page

















