top of page
(4140 SF) VATAVIAN
Property Description
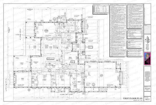
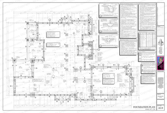
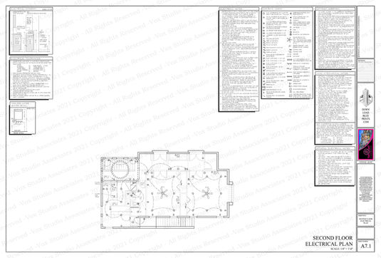
4,140 SF (5,460 Total) 5-Bed, 4-Bath, 2-car Garage, 2-Story, European, Dutch Indies, Urban, Adobe, Desert, Country Style, in-law suite, split floor plan, gated community, Poolside, split floor plan, concrete CMU block construction, home, house, Open-Plan Connecting Kitchen / Breakfast Café / Living Room, Formal Dining Room, Separate Media Room, covered Entry, covered Lanai, covered Cabana & Trellis covered Patio off the Owner's Quarters, size: 62’x100’.
bottom of page


















