top of page
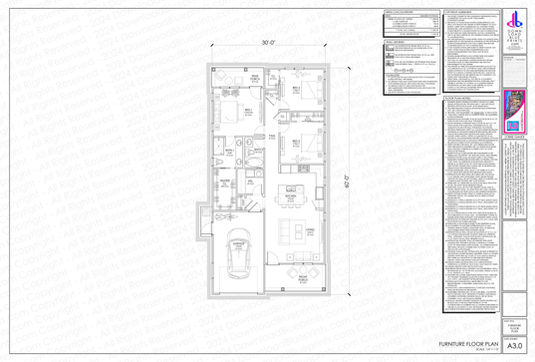
(1300 SF) GAUDI
Property Description
1,300 SF (1,762 Total) 3-Bed, 2-Bath, 1-Car Garage, 1-Story American Craftsman, Modern Farmhouse, Narrow Thin-Lot Style Home, Wood Stick-Frame, 1-Story, 1-Car Garage, Open-Plan connecting Kitchen / Living Room / Pantry, Utility Room, Covered Entry Porch, Hallway Gala, Covered Rear Porch, Size: 30' x 60', 40' x 100' Lot-Fit.
bottom of page

















